Description

• Fabricated structures with extruded aluminium sections enclosed by pressure diecast aluminium angle members
• Sandwich infill panels: zinc-coated steel and expanded polyurethane.
• Duct connection ports of 200 mm diameter, equipped with rubber seals.
• 2 x single phase AC motor of external rotor type coupled directly to forward bladed and singly adjustable centrifugal impellers; 4 operating speeds.
• Maximum air flow 430 m3/h
• Cross-flow type aluminium plate heat exchanger.
• 2 x F5 filter (alternatively, option of F7 filters).
• Option of electric preheat elements designed to prevent icing of the heat exchanger.
• Option of electric or hydronic post-heating devices
• Factory-prepared to accept pressure switches for monitoring the status of filters.
• Condensate drain system with collection vessel.
Read full descriptionClose description
Accessorio_3
Accessorio_4
Accessorio_5

Technical Data Sheet

  • Filter class
    F5
  • Frequency (Hz)
    50
  • Insulation class
  • Max absorbed current (A)
    1,3
  • Max absorbed power (W)
    300
  • Max ambient temperature for continuous operation (°C)
    40
  • Max fan absorbed current (A)
    0,65
  • Max fan absorbed power (W)
    150
  • Min continuous operation room temperature (°C)
    -20
  • Motor class
    B
  • Nominal diameter (mm)
    200
  • Number of phases (Ph)
    1
  • Number of poles
    2
  • Number of speeds
    4
  • Temperature of supply air (°C)
    7,5
  • Voltage (V)
    230
  • Weight (Kg)
    40
  • Breakout sound pressure radiated at 1m at Max speed Lp [dB (A)]
    45
  • Max airflow (l/s)
    139
  • Max airflow (m³/h)
    500
  • Max thermal efficiency (%)
    50,1
  • Nominal airflow (m³/h)
    400
  • Pressure at nominal airflow (Pa)
    160
  • Sound pressure at 1m at Max speed at extraction side Lp [dB (A)]
    56
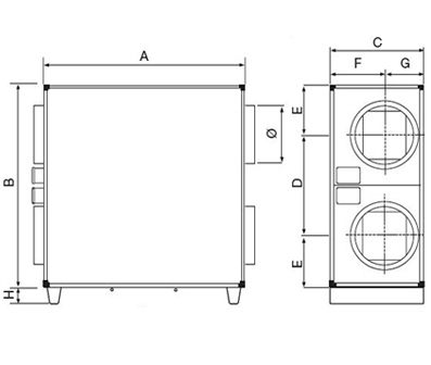
  • Ø (mm)
    200
  • Size A (mm)
    630
  • Size B (mm)
    630
  • Size C (mm)
    324,5
  • Size D (mm)
    160
  • Size E (mm)
    310
  • Size F (mm)
    176,5
  • Size G (mm)
    148
  • Size H (mm)
    95
Accessorio_6
Interested?
If you are interested in this product, contact us or locate your nearest Vortice dealer.
Documentation
You can see all the documentation relating to this product: price list, information booklet and wiring diagram.
Cookies help us to provide our services. By using these services, you accept our use of cookies. Info